Por el Palacio de la Música
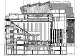
Inaugurado en 1926, fue diseñado por el arquitecto Secundino Zuazo para compaginar varios usos culturales aprovechando el cierre del Teatro Real: cinematógrafo, sala de conciertos, salón de baile y exposiciones. Su actividad musical fue intensa: los conciertos de la Orquesta Lassalle de 1927 a 1936 o los de la Orquesta Nacional de España entre 1944 y 1966. Celibidache, Abbado, Hindemith, Krauss, Maazel, Markevitch o Argenta, son algunas de las batutas que estuvieron al frente de la Orquesta Nacional sobre el escenario del Palacio de la Música.
Luego fue cine durante años, para más tarde echar y el cierre y ser adquirido por Caja Madrid con el objetivo de recuperarlo para la música. Sin embargo los problemas de Bankia han acabado con un proyecto ya en marcha y con inversión realizada. Al parecer hay en la actualidad un posible comprador, Mango, interesado en transformarlo en centro comercial, pero para ello es necesario que el Ayuntamiento de Madrid cambie su uso.
Existen diferentes razones que no sólo justifican, sino que aconsejan la recuperación del Palacio de la Música como sala de conciertos:
Dotar a Madrid de una infraestructura cultural imprescindible debido a la gran oferta de conciertos que se ofrecen y la casi total ausencia de locales adecuados para ello, especialmente en el campo sinfónico.
Resolver los problemas que se plantean a los organizadores de conciertos en Madrid ante las dificultades que suponen la sobre utilización del Auditorio Nacional, y las carencias del Teatro Monumental, únicas salas dedicadas en estos momentos de forma preferente a la celebración de estas actividades, sin que haya una alternativa que reúna las condiciones necesarias.
Proteger nuestro patrimonio histórico, en un inmueble único y recuperarlo para el fin para el que fue construido: sala de conciertos de música clásica.
Dar un nuevo impulso para la zona en que se encuentra ubicado ante la desaparición de gran número de salas de cine y el desplazamiento a la periferia.
Además, su ubicación estratégica en el centro neurálgico de la capital, permitirá otros usos: la necesitada sala de ensayos o de grabaciones, conciertos de otro tipo de músicas, las presentaciones comerciales o eventos especiales como los estrenos cinematográficos.
Transformar el Palacio de la Música en una tienda de moda, supondría no sólo la desaparición del uso cultural del edificio sino la destrucción de una de las salas más notables de la ciudad, obra muy reconocida, singular, y lugar fundamental de la memoria cultural de Madrid.
Desde aquí animo al Ayuntamiento de Madrid a que no se le ocurra cambiar el uso, tal y como tenía en la agenda y a Amancio Ortega y Pablo Isla a adquirir el inmueble y respetar el proyecto original de Bankia. No se trataría sólo de la reversión de un beneficio a la sociedad, sino también una forma de poner barreras a la competencia de Mango en la zona, máxime con un Zara a dos pasos. Inditex se apuntaría un gran tanto de imagen. Gonzalo Alonso
En otros medios:
























Últimos comentarios